














Ruhig und zentral? Für diese Wohnung kein Problem!
Objekt-ID: 1138-VKW0279-NF, Ort: 50825 KölnDaten im Überblick
Preise und Kosten
Bei diesem Preis handelt es sich um den Richtpreis im Gebotsverfahren. Der Richtpreis darf sowohl unter- als auch überboten werden. (Weitere Infos zum Gebotsverfahren erhalten Sie in der Rubrik "Sonstige Angaben")
Energiepass
Objektbeschreibung
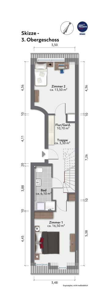
Diese schmucke Maisonette Altbauwohnung liegt in einem sehr gepflegten, denkmalgeschützten Mehrfamilienhaus im angesagten Veedel Ehrenfeld. Im Jahre 2004 wurde das 3. OG und das Dachgeschoss, wo sich die Wohnung befindet aufgestockt. In diesem Jahr wurde das gesamte Gebäude kernsaniert und energetisch auf den neusten Stand gebracht.
Die Wohnung (3. OG und DG) und das Gebäude bestechen nicht nur durch den guten Modernisierungsstand, sondern auch durch die hellen und lichtdurchfluteten Räumlichkeiten. Die sonnenverwöhnte Dachterrasse Richtung Westen garantiert Entschleunigung vom pulsierenden Großstadtleben.
Durch die ruhige Lage, das gepflegte Wohnumfeld und die gute Anbindung an den ÖPNV ist diese charmante Wohnung insbesondere für Singles, Paare oder für Studenten (WG´s) sehr interessant. Auch Kapitalanleger werden begeistert sein! Leerstand: Fehlanzeige.
Zum jetzigen Zeitpunkt ist die Wohnung noch an eine junge Familie vermietet.
Ausstattung der Immobilie
Die ausführliche Beschreibung der Ausstattung erhalten Sie in unserem PDF-Exposé.
Bitte senden Sie uns hierzu eine Anfrage!
Was Sie sonst noch wissen sollten
Es liegt ein Energieverbrauchsausweis vor.
Dieser ist gültig bis 12.12.2027.
Endenergieverbrauch beträgt 74.60 kwh/(m²*a).
Wesentlicher Energieträger der Heizung ist Gas.
Das Baujahr des Objekts lt. Energieausweis ist 2004.
Die Energieeffizienzklasse ist B.
Das monatliche Hausgeld ETW (lt. Abrechnung 2024 in Höhe von ca. 327,- € setzt sich wie folgt zusammen:
Umlagefähige Kosten: 208,65 €
Nicht umlagefähige Kosten: 59,04 €
Instandhaltungsrücklage: 59,24 €
VIRTUELLES OPEN HOUSE : Online Termin am 07.05.2026 um 19:00 Uhr. Zu diesem Termin laden wir alle Interessenten ein, die Immobilie virtuell kennenzulernen. Eine Anmeldung ist hierfür erforderlich.
Besichtigungen vor dem VIRTUELLEN OPEN-HOUSE-Termin sind leider nicht möglich. Nach diesem Termin sind Besichtigungen des Hauses nach Abstimmung mit uns möglich.
Anmerkung zum Gebotsverfahren:
Nach der Besichtigung der Immobilie haben Sie die Möglichkeit, innerhalb einer festgesetzten Frist ein schriftliches Kaufangebot abzugeben.
Alle eingegangenen Gebote werden ausgewertet. Bei der Auswahl des Käufers können neben der gebotenen Summe auch weitere Kriterien, wie beispielsweise Finanzierungsnachweise oder Einkommensverhältnisse, eine Rolle spielen.
Mit der Abgabe eines Gebots entsteht grundsätzlich kein Anspruch auf Abschluss eines Kaufvertrages.
Der guten Ordnung halber weisen wir Sie darauf hin, dass unsere Tätigkeit, eine Vermittlungs-/Nachweisgebühr in Höhe von 3,57 % des Kaufpreises inkl. der gesetzlichen Mehrwertsteuer nach notariellem Vertragsabschluss nach sich zieht. Durch Ihre weitere Objektanfrage bestätigen Sie die Vereinbarung und Anerkennung dieser Maklercourtage.
Ferner beruhen diese Objektdaten auf Angaben des Verkäufers, für die wir keine Gewähr übernehmen.
Fragen Sie uns auch nach den aktuellen Finanzierungsmöglichkeiten!
Lagebeschreibung
Ehrenfeld ist ein Stadtteil von Köln und liegt nord-westlich der Altstadt.
Das Veedel hat sich zu einer sehr lebendigen Szeneviertel entwickelt, wird als Wohngegend immer beliebter und gehört zu den gefragtesten Wohnlagen Kölns.
Das Stadtbild ist geprägt von Häusern aus der Gründerzeit und Industriedenkmälern. Dort finden Sie zahlreiche Theater, Kinos, Restaurants und Szenekneipen, etc.
Hier pulsiert das Leben.
Künstler sowie Familien mit Kindern fühlen sich hier gleichermaßen wohl, denn Lebensqualität und hoher Freizeitwert sind hier großgeschrieben. Einkaufsmöglichkeiten des täglichen Bedarfs sowie Kindergarten, Schulen, Ärzte und Apotheken befinden sich in unmittelbarer Nähe der Wohnung und sind fußläufig erreichbar.
Die Grünanlage "Innerer Grüngürtel" garantiert ein großzügiges Areal für aktive Sportler, Spaziergänger, junge Familien mit Kindern und gestresste Großstädter aber auch zum Grillen im Sommer.
Die hervorragenden Anbindung an öffentlichen Verkehrsmittel: U-Bahn (ca. 350 m), S-Bahn (ca. 500 m), Straßenbahn und diversen Buslinien sowie der Anschluss an die A57 ermöglichen ein rasches Vorankommen in alle Himmelsrichtungen.
Ihr Ansprechpartner
Nils Fischer
Immobilienkaufmann (IHK)

RE/MAX Immoprojekte